Uitbreiding Finsenstraat
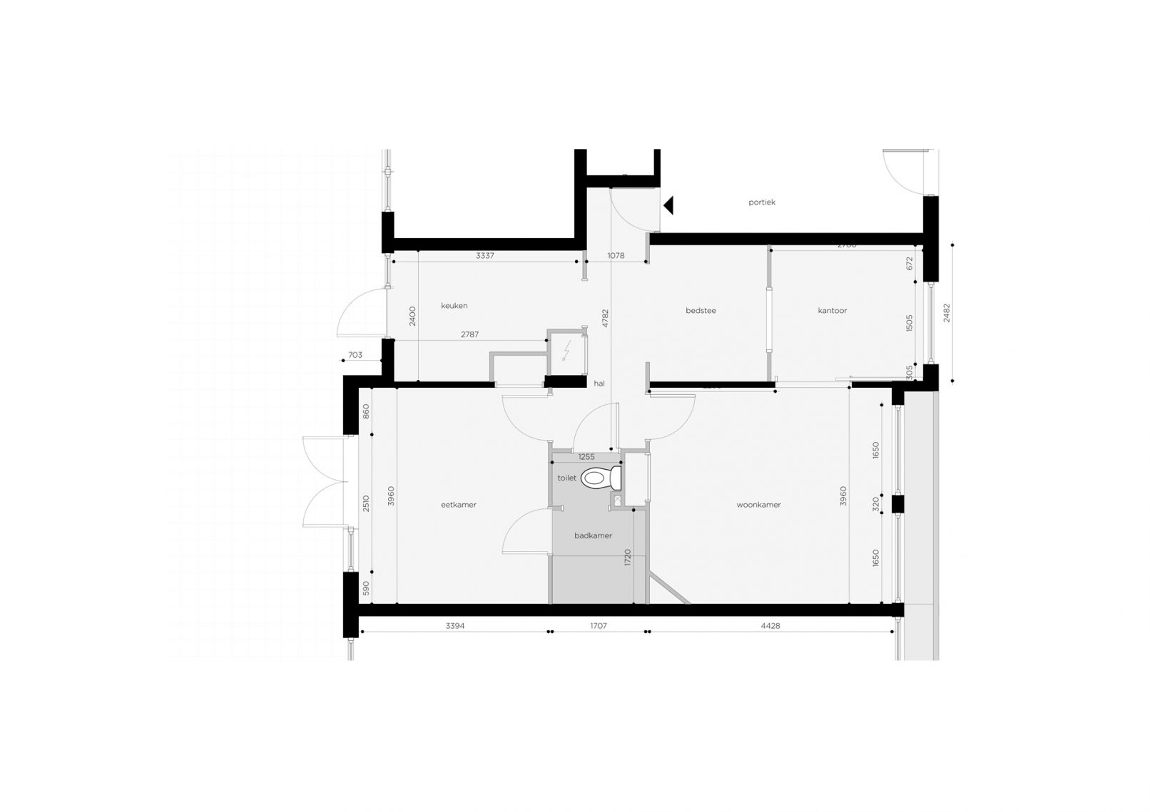
Voor een appartement in de Finsenstraat (Amsterdam-Oost) heeft studiopops een ontwerp gemaakt voor een vergunningsvrij uitbouw.Onderdeel van de verbouwing was het betrekken van de keuken bij de woonkamer, het verplaatsen van de slaapkamer en badkamer en toilet, het creëren van een extra slaapkamer, maar ook het vergroten van de woning en het wooncomfort van de bestaande benedenwoning uit 1950.
Categorie
- Verbouwing, Uitbreiding, Woning
Tijdspanne
- 2015
Status
- Ontwerp
Typologie
- Appartement
Oppervlakte
- 66m² > 86m2
Opdrachtgever
- Particulier



