Equal Yoga studio
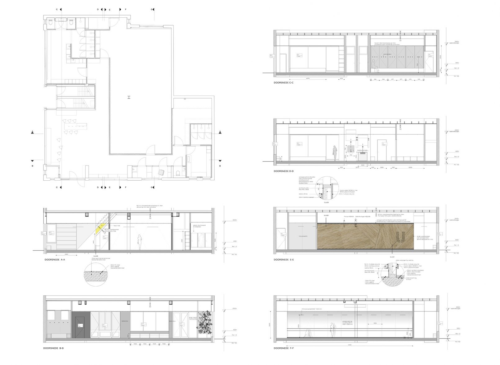
In samenwerking met Studio Mokum heeft studiopops meegewerkt aan de verbouwing van een bijzonder en historisch pand aan de Linnaeusstraat in Amsterdam. Het pand, oorspronkelijk gebouwd als tram-remise, heeft al meerdere metamorfoses ondergaan; Ford garage, Wibra en nu tot yogastudio: Equal Yoga.
studiopops was hierbij verantwoordelijk voor: het in kaart brengen van de bestaande situatie, uitwerken van het ontwerp, vergunningstraject en het uitwerken van bestektekeningen.
Categorie
- Interieur, Retail, Sport
Tijdspanne
- 2015-2016
Status
- Gerealiseerd
Typologie
- Yogastudio
Oppervlakte
- 285m²










